Triplex - 185m2 - Boulogne-Billancourt
€
1 140 000
€
Surface:
185
m²
Pièces:
7
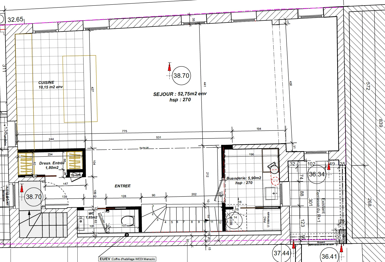
À deux pas du centre-ville Les Passages, découvrez un projet immobilier rare et exclusif : la transformation d’un duplex de 88 m² existant en un triplex de 185 m² habitables avec terrasse de 35 m² plein ciel.
Le permis de construire est purgé de tout recours et validé par la copropriété (petit immeuble ancien de caractère, seulement 3 logements et un bureau). Les travaux seront à réaliser par l’acquéreur, offrant la liberté de personnaliser l’appartement selon ses besoins.
Caractéristiques principales :
Surface future : env. 185 m² (contre 88 m² aujourd’hui)
Terrasse de 35 m², de plain-pied au 4ème étage, exposition Nord-Sud-Ouest
Distribution prévue : vaste séjour de plus de 60 m² avec cuisine ouverte , 4 chambres dont une suite parentale (possibilité 5 chambres), 2 salles de bains + buanderie
Étage : 2e, 3e et 4e étages après surélévation (dernier étage)
Les atouts :
Un projet unique et rare à Boulogne, comparable à une maison sur le toit
Modularité des aménagements intérieurs : possibilité d’adapter les plans selon vos envies
Terrasse plein ciel de grande dimension, idéale pour recevoir
Environnement calme, à proximité immédiate du centre commerçant, des écoles et des transports
Projet construction norme RE2020 - DPE A ou B
1 140 000€ FAI
Description
Bien :
Vente
Prix Vente:
1 140 000
€
Surface:
185
m²
Etage No:
2
Pièces:
7
Chambres:
5
Classement Énergétique:
G
Valeur conso. Primaire:
417
kWh/m2/ an
Carte
Missing address
Autre Bien
Superbe Appartement Haussmanien dans l\'étage noble, avec balcon et ascenseur
Surface:
146m²
Chambres:
4
Salle de bain:
1
Appartement T3 à rénover - idéalement situé
Surface:
66m²
Chambres:
2
Salle de bain:
1
A la Une !
Superbe Appartement Haussmanien dans l\'étage noble, avec balcon et ascenseur
Surface:
146m²
Chambres:
4
Salle de bain:
1















